At The Empowerment Center, we’re looking forward to our new headquarters and treatment center – TEC2. While we’ve loved our South Virginia home since 2005, as we’ve evolved from our roots as The Launching Pad halfway house to the addiction treatment center we are today we’ve come to need more space. We’re ready to serve more women and are excited to expand our signature treatment program. A purpose-built headquarters will allow us to do just that.
Thanks to last summer’s $12.5 million grant from the Nevada Housing Division, we’ve been busy planning our next steps.
Located across the street from Marvel Way, TEC2 will expand our capacity from 36 to 80 women. The new, modern space will give our clients even more opportunity to breath. It will allow them space, time, and a way to experience success in increments that are healthy and manageable. This roles into increased confidence and increased ability to maintain mental health while staying clean and sober.
Ready to see what’s in the works? Here’s a snapshot of what The Empowerment Center will be offering in our new building’s common spaces, programming rooms, bedrooms, and outdoor areas.
Common Spaces
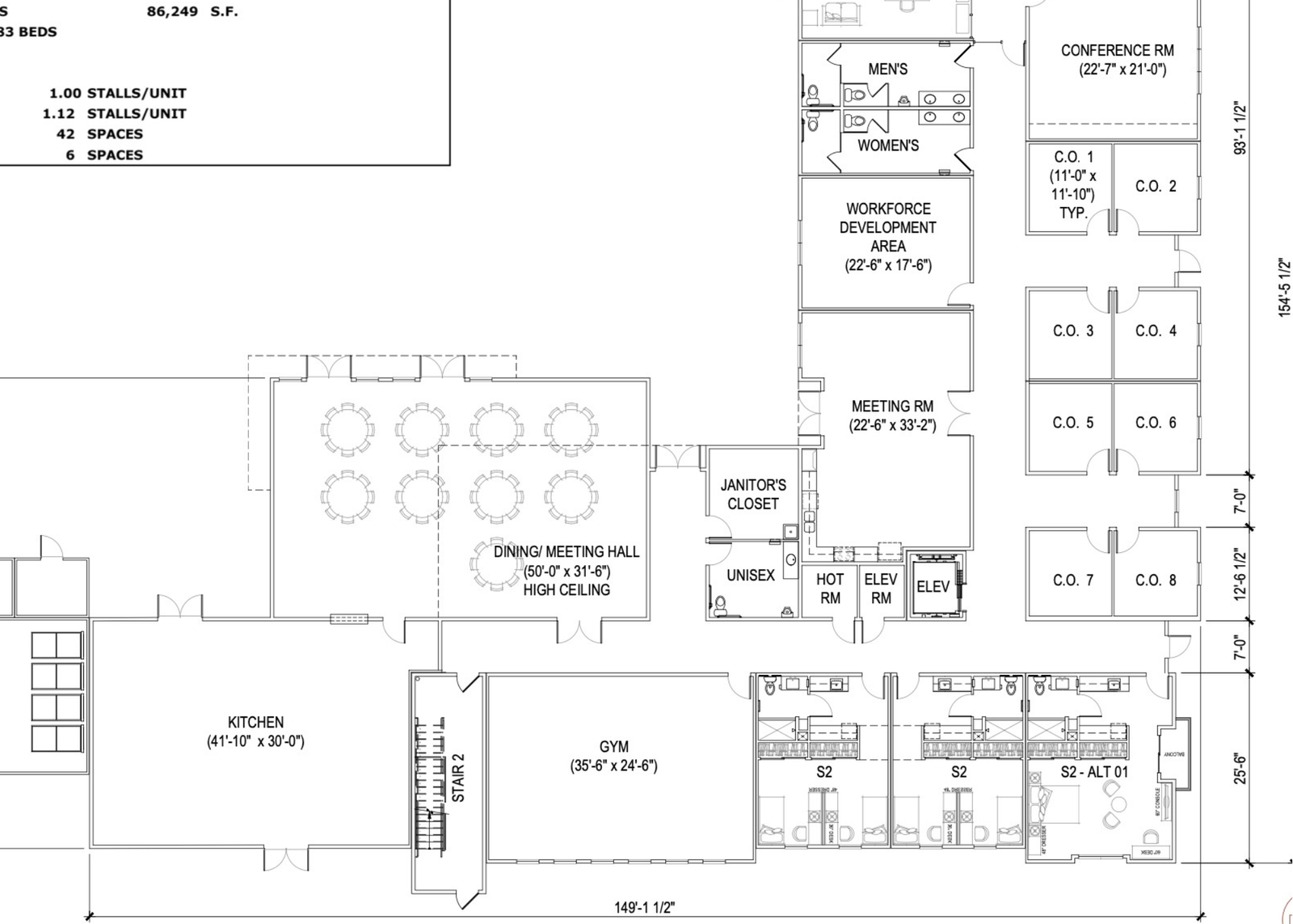
With The Empowerment Center serving 80 clients, our shared living areas are going to feel very different. To create a temporary home for so many more women struggling with addiction, we’ll be upgrading our communal areas for relaxing, getting to know one another, and preparing shared meals. Supporting healthy lifestyles is one of the many ways we support long term sobriety, after all. By adding a commercial kitchen and fitness center, we’ll be giving our clients even more tools to heal.
That’s right – a commercial kitchen! It’s hard to believe, but at our current location, our clients have been self-organizing shared meals. In our new, larger space, a modern commercial kitchen with a supervising Kitchen Manager will be a must. Food will continue to come from donations from people like you, the food bank, and our friends at the Katie Grace Foundation. While our new Kitchen Manager will provide a structured support system, our clients will continue to partake in the planning and creation of meals. We find that working together in the kitchen is a great way to teach life skills and encourage our clients to build teamwork and community while supporting one another. Some of our greatest core memories are centered around food, and sharing meals encourages our clients to build similar experiences.
For many of us, fitness plays an important role in maintaining a healthy lifestyle and caring for ourselves. It can even feel like therapy. Similarly, we’re working to bring the benefits of movement to our Empowerment Center women. We’re already offering fitness classes with the support of Camie Craig Fitness and Reps for Recovery. At TEC2, we can’t wait to provide a home for our wellness program, in a fitness center equipped with strength training and cardio equipment. Studies show that promoting physical activity is linked to decreased substance use and increased likelihood of maintaining sobriety, in both people and animals. We feel it represents a small yet meaningful addition to the wrap around services on offer at TEC.
Programming Rooms
To match our evolving programming, adding more rooms helps us tailor treatment to the specific needs of every woman at The Empowerment Center. It will allow each client to progress at her own pace. With more programming rooms and meeting spaces, we’ll simply be able to do more – to offer concurrent programs simultaneously, including smaller breakout sessions for group therapy and a dedicated space for our Workforce Development program.
Our new Workforce Development area will feature a mix of computers and shared tables, allowing for a range of vocational groups, guest speakers, and supported job searches. When the room isn’t being used for formal programming, it will remain open for general use as a computer lab.
Finally, we’re excited to improve our therapy spaces. At TEC2, our purpose-built therapy rooms will provide a more comfortable environment for clients to work 1:1 with their counselors.
Semi-Private Bedrooms
In early recovery, having a roommate adds to stability and safety. This can be vital for individuals who’ve been in unstable living situations for a long time. In balance with this, TEC also understands how some women aren’t used to having roommates and desire personal space.
That’s why, with our new building, we’re introducing semi-private shared rooms. While our rooms will still sleep two, they’ll feature a partial wall dividing the space, offering an extra level of privacy. This supports our clients in focusing on their recoveries while enjoying having their own space within a larger community. Each of our rooms comes fully furnished and includes a private bathroom, mini-fridge, microwave, and TV.
Outdoor Spaces
Did you know? Access to outdoor spaces has been proven – again and again – to reduce a wide range of psychiatric problems. While walks, gardening, exercise, and other outdoor activities are especially beneficial, even the simple acts of sitting outside or having views of plant life are proven to reduce anxiety and depression, quicken recovery from physical ailments, and “support an individual’s subjective process of finding a path towards living a meaningful life.”
As with our Virginia Street treatment center and Marvel Way Apartments, TEC2 will feature outdoor spaces. The courtyard and landscaped areas marked in our design drawings will offer areas for picnicking, BBQing, and simply enjoying the afternoon sunshine. Once again, we’ll be including raised garden beds in our landscaping plans, supporting clients who enjoy getting their hands dirty, nurturing veggies, and sampling the flavors of a job well done.


